Khung két TOTO WH172AT âm tường là phụ kiện thích hợp với bồn cầu treo tường TOTO treo tường như CW522EA, CW182REA, CW822REA…
Đặc điểm nổi bật của Khung két TOTO WH172AT âm tường
- Thiết kế chắc chắn, bền bỉ theo thời gian, chịu được sức nặng
- Âm tường giúp phòng tắm trở nên gọn gàng
- Kết hợp với bồn cầu âm tường, bồn cầu điện tử
* Kết hợp với các bồn cầu treo tường TOTO CW522EA , CW542HME5UNW1, CW822REA, CW812REA
* Kết hợp với các nắp rửa điện tử: TCF796CZ , TCF794CZ , TCF4911EZ
Thông số kỹ thuật của Khung két TOTO WH172AT âm tường
- Mã sản phẩm: WH172AT
- Tên sản phẩm: Két nước và khung âm tường TOTO
- Chất liệu chính: Nhựa, Kim loại
- Hệ thống xả: 4.5/3L
- Áp lực nước: 0,5 – 0,75 (MPa)
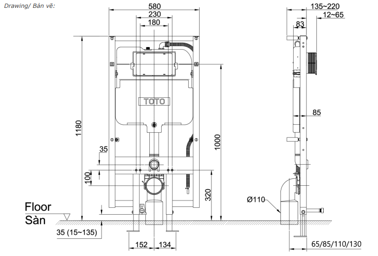
- Kích thước (HxWxD): 1180 x 580 x 135 mm
- Xuất xứ: Trung Quốc
Chú ý: Lắp kết hợp với bồn cầu và nắp điện tử giấu dây – Chưa gồm phụ kiện TCA465 để cấp nước cho nắp
Bản vẽ kỹ thuật của Khung két TOTO WH172AT âm tường





Đánh giá
Chưa có đánh giá nào.