Chậu rửa lavabo treo tường LPT767C thiết kế tiện dụng và phù hợp với mọi không gian phòng tắm, chậu được áp dụng nhưng công nghệ tiến tiến nhất của TOTO.
Đặc điểm kỹ thuật của chậu lavabo treo tường LPT767C
- Chậu được thiết kế treo tường chân dài đặt sàn tạo cảm giác vững chắc.
- Chậu LPT767C được làm từ chất liệu sứ vệ sinh cao cấp, bền ngoài phủ một lớp men đặc biệt giú, bề mặt nhẵn bóng hạn chế tối đa bán bẩn và vi khuẩn trong lòng chậu.
- Chậu được thiết kế lỗ thoát tràn nên khi sử dụng không sợ bị nước tràn ra phía ngoài chậu.
Thông số kỹ thuật chậu Lavabo treo tường LPT767C
| Tên sản phẩm | : | Chậu Lavabo treo tường LPT767C |
| Mã sản phẩm | : | LPT767C |
| Kích thước | : | 510×515 mm |
| Hãng sản xuất | : | TOTO |
| Xuất xứ | : | Việt Nam |
| Màu sắc | : | Màu trắng# |
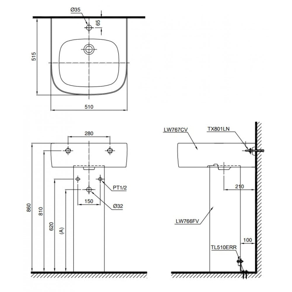
Bản vẽ kỹ thuật chậu Lavabo treo tường LPT767C
( Chậu chưa bao gồm vòi và xi phông )
Bản vẽ kỹ thuật chậu Lavabo treo tường LPT767C



Đánh giá
Chưa có đánh giá nào.