Bàn cầu thông minh TOTO NEOREST LS CS911VT/TCF87220GAA/T53P100VR – Đỉnh cao thiết kế và công nghệ Nhật Bản. Tháng 8 năm 2023, TOTO tiếp tục khẳng định vị thế thương hiệu hàng đầu với việc ra mắt bàn cầu thông minh NEOREST LS CS911VT/TCF87220GAA/T53P100VR, thuộc bộ sưu tập NEOREST mới nhất. Đây là dòng sản phẩm cao cấp hội tụ đầy đủ tinh hoa thiết kế và công nghệ, hướng tới sự hoàn hảo trong từng chi tiết.
Bàn cầu thông minh TOTO NEOREST LS CS911VT/TCF87220GAA/T53P100VRNEOREST LS sở hữu thiết kế cong thoải mềm mại, tạo cảm giác vừa vững chãi vừa êm ái khi sử dụng. Điểm nhấn ấn tượng nằm ở sắc đen tinh tế giữa nắp và thân cầu, tạo nên sự kết nối độc đáo và tổng thể hài hòa. Ngoài ra, khách hàng còn có thêm lựa chọn màu sắc Niken và Bạc, giúp sản phẩm dễ dàng hòa hợp với đa dạng phong cách phòng tắm.
Không chỉ đẹp về thẩm mỹ, NEOREST LS còn đạt được những giải thưởng thiết kế danh giá quốc tế như Reddot Award 2022 và iF Design Award 2022, khẳng định chất lượng và giá trị toàn cầu.
Tính năng nổi bật của bàn cầu thông minh TOTO NEOREST LS CS911VT/TCF87220GAA/T53P100VR
- Các tính năng tự động thông minh mang lại sự tiện lợi tối đa:
- Nắp tự động đóng/mở: Tiện lợi, hạn chế tiếp xúc trực tiếp, đảm bảo vệ sinh.
- Chế độ sấy khô bằng khí ấm: Giúp người dùng luôn thoải mái và khô ráo.
- Khử mùi tự động: Giữ cho không gian phòng tắm luôn dễ chịu.
- Xả tự động: Vận hành thông minh, tiết kiệm thời gian và nước.
- Sưởi ấm bệ ngồi: Đem lại cảm giác dễ chịu, đặc biệt vào mùa đông.
- Vòi rửa phun bọt khí massage đa chức năng: Trải nghiệm nhẹ nhàng, thư giãn và sạch sẽ tuyệt đối.
- Công nghệ làm sạch vượt trội:
- Men sứ CEFIONTECT: Bề mặt siêu nhẵn, chống bám bẩn hiệu quả, dễ dàng vệ sinh.
- Thiết kế vành kín RIMLESS & xả TORNADO HYBRID: Lực xả xoáy mạnh mẽ, siêu êm, tiết kiệm nước tối đa.
- EWATER+ cho vòi rửa, bệ ngồi và lòng bàn cầu: Nước điện phân diệt khuẩn 99,9%, duy trì vệ sinh tối đa, an toàn cho sức khỏe và thân thiện môi trường.
- Thiết kế sang trọng, đa màu sắc: Sản phẩm nổi bật với đường cong mềm mại, kết hợp sắc đen tinh tế giữa nắp và thân cầu, tạo điểm nhấn sang trọng. Các tùy chọn màu Niken và Bạc giúp sản phẩm dễ dàng hòa hợp với đa dạng phong cách thiết kế nội thất. Sản phẩm có thể hòa hợp với đa dạng phong cách thiết kế phòng tắm. Dưới đây là phòng mẫu gợi ý từ TOTO:
Lợi ích khi khách hàng sở hữu bàn cầu thông minh TOTO NEOREST LS CS911VT/TCF87220GAA/T53P100VR
- Trải nghiệm tiện nghi tuyệt đối: Khách hàng sẽ cảm nhận sự tiện lợi nhờ tính năng tự động hóa hoàn toàn: từ nắp mở, xả nước, sưởi ấm, sấy khô cho đến khử mùi. Mỗi chi tiết đều được thiết kế để mang đến sự thoải mái tối đa cho người dùng.
- Giữ gìn vệ sinh và bảo vệ sức khỏe: Công nghệ EWATER+ và CEFIONTECT giúp loại bỏ vi khuẩn hiệu quả, giảm thiểu mảng bám, duy trì bàn cầu luôn sạch sẽ. Người dùng hạn chế phải tiếp xúc trực tiếp với các bề mặt, tăng cường vệ sinh và an toàn.
- Tiết kiệm chi phí và tài nguyên: Hệ thống xả TORNADO HYBRID 3.8/3L tiết kiệm đáng kể lượng nước tiêu thụ. Công nghệ điện tử tiên tiến giúp tối ưu năng lượng, giảm chi phí sử dụng trong dài hạn.
- Khẳng định đẳng cấp không gian sống: Không chỉ là thiết bị vệ sinh, NEOREST LS còn là tuyên ngôn phong cách sống. Sản phẩm đạt các giải thưởng quốc tế, giúp nâng tầm giá trị thẩm mỹ và thể hiện gu thẩm mỹ tinh tế của gia chủ.
Đặc biệt, sản phẩm được tích hợp EWATER+ cho bệ ngồi – công nghệ mới nhất mà TOTO giới thiệu ra thị trường.
Thông số kỹ thuật của bàn cầu thông minh TOTO NEOREST LS CS911VT/TCF87220GAA/T53P100VR
- Mã sản phẩm: CS911VT/TCF87220GAA/T53P100VR
- Chất liệu: Sứ vệ sinh cao cấp
- Loại xả: TORNADO HYBRID 3.8/3L (tự động)
- Nguồn điện: AC220~240V (50/60Hz)
- Tâm xả: 305 mm (thoát thẳng)
- Màu sắc: Trắng kết hợp điểm nhấn đen, tùy chọn Niken hoặc Bạc
- Tính năng: Nắp tự động, khử mùi, sưởi ấm bệ ngồi, vòi rửa phun bọt khí, EWATER+, xả tự động, sấy khô.
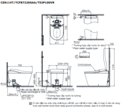
Bản vẽ kỹ thuật của bàn cầu thông minh TOTO NEOREST LS CS911VT/TCF87220GAA/T53P100VR
Lưu ý khi sử dụng
Nơi lắp đặt cần đảm bảo thông gió để hạn chế nồm ẩm, ảnh hưởng tới hệ thống điện của bàn cầu
Tránh xịt nước trực tiếp và tẩy rửa bàn cầu với hóa chất có độ kiềm cao
Xem thêm: Bàn cầu thông minh TOTO khác tại đây!
Trải nghiệm công nghệ vệ sinh Nhật Bản chuẩn 5 sao – Gọi ngay HOTLINE 0902.178.595 để sở hữu bàn cầu thông minh TOTO NEOREST AS chính hãng tại Hà Nội!



Đánh giá
Chưa có đánh giá nào.