Bàn cầu TOTO MS885CDW23#XW kết hợp nắp rửa điện tử TCF47360GAA là lựa chọn lý tưởng cho những ai đang tìm kiếm một giải pháp vệ sinh tiện nghi, sạch sẽ và đầy đủ tính năng hiện đại. Sự kết hợp hoàn hảo giữa thiết kế tối giản, sang trọng cùng các công nghệ tiên tiến của TOTO mang lại trải nghiệm sử dụng vượt trội cho người dùng.
Tính năng nổi bật của bàn cầu 1 TOTO MS885CDW23#XW khối kèm nắp rửa điện tử TCF47360GAA
- Thiết kế giấu dây tinh tế
Phần dây cấp và dây điện được thiết kế giấu hoàn toàn, giúp tổng thể bàn cầu trông gọn gàng, tinh tế và dễ dàng vệ sinh khu vực xung quanh.
- Lớp men sứ CEFIONTECT chống bám bẩn vượt trội
Lớp men siêu mịn độc quyền của TOTO ngăn chất bẩn và vi khuẩn bám dính, giữ bề mặt luôn sáng bóng và sạch sẽ.
- Hệ thống xả Tornado xoáy mạnh mẽ
Công nghệ xả xoáy êm ái và mạnh mẽ giúp cuốn trôi mọi chất bẩn hiệu quả, đồng thời tiết kiệm nước tối đa với hai mức xả 4.5/3L.
Trải nghiệm nắp rửa thông minh TCF47360GAA
- Tích hợp nắp rửa điện tử TCF47360GAA cao cấp giúp người dùng tận hưởng cảm giác tiện nghi, sạch sẽ và thư giãn trong từng khoảnh khắc:
- Tự động mở/đóng nắp khi người dùng tiếp cận hoặc rời đi
- Phun tráng lòng bàn cầu bằng nước điện phân khử khuẩn Ewater+
- Vệ sinh vòi rửa và vành dưới bệ ngồi bằng công nghệ Ewater+
- Vòi rửa massage đa chế độ, rửa sạch nhẹ nhàng và êm ái
- Tích hợp chế độ bọt khí trong tia nước, vừa dịu nhẹ vừa tiết kiệm nước
- Tự vệ sinh vòi rửa trước và sau mỗi lần sử dụng
- Phun sương làm sạch lòng bàn cầu
- Tích hợp sấy khô, khử mùi và sưởi ấm bệ ngồi – lý tưởng trong mùa lạnh
Thông số kỹ thuật
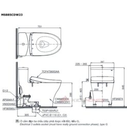
- Kích thước: Dài 701 x Rộng 387 x Cao 645 mm
- Màu sắc: Trắng
- Hệ thống xả: Tornado
- Lượng nước xả: 4.5/3L
- Thiết kế: Thân dài, thân kín
- Tâm xả: 305 mm
- Áp lực nước: 0.05 ~ 0.75 MPa
- Bao gồm: Bích nối sàn và van dừng
Bản vẽ kỹ thuật của bàn cầu 1 TOTO MS885CDW23#XW khối kèm nắp rửa điện tử TCF47360GAA
Bàn cầu 1 TOTO MS885CDW23#XW khối kèm nắp rửa điện tử TCF47360GAA


Đánh giá
Chưa có đánh giá nào.