Bàn cầu hai khối TOTO CS326DE2#XW, nắp đóng êm kèm vòi rửa nước lạnh TCW07S là bồn cầu hai khối CS326 kết hợp nắp rửa cơ ECOWASHER TCW07S có thiết kế thân dài, thân bán kín khá mới lạ và hiện đại.
Nhờ thiết kế cải tiến này, việc vệ sinh vô cùng dễ dàng, phù hợp lắp đặt trong mọi không gian nhà vệ sinh.
Ngoài ra, phần nắp rửa cơ ECOWASHER được làm từ chất liệu cao cấp nên có tính năng chống bám bẩn vô cùng hoàn hảo. Bạn không cần sử dụng đến các chất tẩy rửa mà vẫn có thể làm sạch nhanh chóng.
Tính năng công nghệ của bồn cầu TOTO CS326DE2#XW
Tính năng công nghệ tiên tiến của sản phẩm bao gồm:
Lớp men CEFIONTECT
Bàn cầu hai khối CS326 kết hợp nắp rửa cơ ECOWASHER TCW07S được tráng bề ngoài bằng lớp men CEFIONTECT nên có khả năng ngăn chất thải bám vào.
Ngoài ra, lớp men sứ mịn màng này còn giúp bảo vệ sản phẩm luôn bền đẹp qua quá trình sử dụng.
Hệ thống xả xoáy TORNADO
Hệ thống xả xoáy TORNADO là tính năng siêu hiện đại được TOTO tích hợp trong bàn cầu hai khối.
Khi kết hợp cùng nắp rửa cơ ECOWASHER TCW07S, bộ đôi này phát huy tối đa công năng, không chỉ làm sạch hiệu quả mà còn giảm tiếng ồn.
Dòng nước với áp lực mạnh kết hợp xoáy 360 độ có thể làm sạch hoàn toàn mọi vết bẩn chỉ với một lần xả.
Xả tiết kiệm nước và kết hợp nắp rửa ECOWASHER
Ngoài ra, sản phẩm còn có công nghệ siêu tiết kiệm nước, chỉ với 4.5/3L cực kỳ phù hợp với những không gian nhà vệ sinh hiện đại.
Bên cạnh đó, thiết kế nắp rửa ECOWASHER với một chế độ rửa giúp người dùng sử dụng thuận tiện hơn.
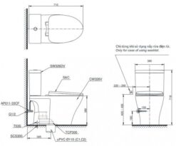
Thông số kĩ thuật của bồn cầu TOTO CS326DE2#XW
- Kích thước: L710 x W380 x H718 (mm)
- Màu sắc: Trắng
- Hệ thống xả: TORNADO
- Lượng nước xả: 4.5/3L
- Thiết kế: Thân dài, thân bán kín
- Tâm xả: 305 mm
- Áp lực nước: 0.05 ~ 0.70 MPa
- Lưu ý: Bao gồm bích nối sàn, van dừng và dây cấp
Bản vẽ kĩ thuật của bồn cầu TOTO CS326DE2#XW
Bản vẽ kĩ thuật của bồn cầu TOTO CS326DE2#XW



Đánh giá
Chưa có đánh giá nào.