Bàn cầu một khối American Standard VF-1808S không chỉ tạo ngạc nhiên cho hầu hết mọi người với thiết kế độc đáo mà còn bởi những tính năng và giá cả hấp dẫn của nó, mà bản thân nắp rửa thông minh Smart Washer còn mở ra một ý niệm mới, linh kiện rời cao cấp cho các thiết bị vệ sinh.
Đặc điểm nổi bật của Bồn cầu American Standard VF-1808S
- Nắp đóng êm kèm vòi rửa nước lạnh Slim, vòi rửa nhẹ nhàng đem đến cảm giác thoải mái cho người sử dụng.
Đảm bảo vệ sinh trước và sau mỗi lần sử dụng, dễ dàng lắp đặt và sử dụng. - Bàn cầu được tích hợp nắp rửa thông minh SMART WASHER .Nắp rửa thông minh Smart Washer có một thiết kế đơn giản đến ấn tượng nhưng đem lại hiệu quả tuyệt vời trong vận hành và bảo trì cũng như vệ sinh. Quả vậy, chiếc nắp bồn cầu gắn rời này có thể tháo lắp một cách dễ dàng, nhanh chóng, sử dụng cho nhiều loại bồn cầu American Standard khác nhau, đồng thời cũng tích hợp ổn định cho bồn cầu của các thương hiệu khác có cùng kích cỡ.
- Sản phẩm nắp rửa thông minh SMART WASHER – một sản phẩm thân thiện với môi trường, thích hợp cho mọi người ở mọi lứa tuổi dễ dàng sử dụng, và đặc biệt là giúp cho người già người tàn tật, trẻ em tự lập trong việc vệ sinh cá nhân, giảm sự mệt mỏi cho người phục vụ, tiết kiệm tối đa chi phí giấy vệ sinh và nguồn nước. Thực sự là một điểm cộng thú vị cho những không gian tiện nghi hiện đại xanh và sạch.
Thông số kĩ thuật của Bồn cầu American Standard VF-1808S
- Mã sản phẩm: VF-1808S
- Tên bàn cầu: Bàn cầu 1 khối nắp rửa lạnh American Standard VF-1808S
- Loại bồn cầu: Bàn cầu thân dài với hệ thống xả thẳng mạnh mẽ
- Công nghệ: Technology USA
- Kiểu xả: Xả nhấn 2 chế độ 3.2L/4.8L
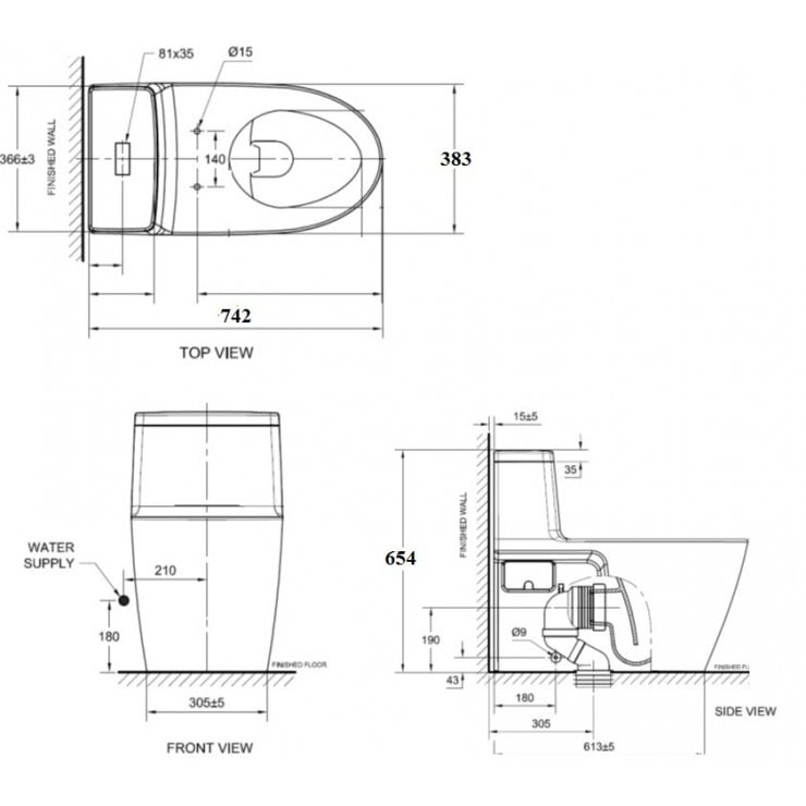
- Tâm xả: 305mm
- Dạng nắp: Nắp đóng êm kèm vòi rửa nước lạnh SLIM-00001-WT
- Màu sắc: Trắng (white)
- Kích thước: 742(Dài) x 383(Rộng) x 654(Cao)mm
Bộ sản phẩm đầy đủ bao gồm: Thân bồn cầu VF-1808; Nắp bồn cầu (Nắp rửa lạnh) SLIM-00001-WT
Bản vẽ kĩ thuật của Bồn cầu American Standard VF-1808S



Đánh giá
Chưa có đánh giá nào.