Bồn Cầu 1 Khối Nắp Rửa Điện Tử TOTO MS823CDRW12#XW là loại bồn cầu một khối với lực nước xả mạnh giúp dễ dàng rửa trôi đi các vi khuẩn và căn bẩn bám trên thành cầu.
Đặc điểm nổi bật của Bồn Cầu 1 Khối Nắp Rửa Điện Tử TOTO MS823CDRW12#XW
- Men sứ chống dính, chống bám bẩn CEFIONTECT. Đối với men sứ bình thường, các vi khuẩn sẽ bám vào và sinh sôi nảy nở tạo thành các mảng ố vàng. Nhưng đối với men CefionTect, điều này bạn không cần lo lắng nữa. Bề mặt men kín đáo và trơn láng, vi khuẩn sẽ dễ dàng rửa trôi
- Hệ thống xả xoáy Tornado siêu mạnh, siêu êm, tiết kiệm nước giúp dễ dàng vệ sinh hết các cặn bẩn ở mọi ngóc ngách. Lực nước mảnh giúp đẩy trôi các chất bẩn dễ dàng hơn
- Công nghệ nước điện phân khử khuẩn Ewater+ (Vệ sinh vòi rửa) là loại nước sau khi được điện phân sẽ chứa axit hypoclorơ ngăn ngừa vi khuẩn, nươc này chỉ dùng để vệ sinh đầu vòi và tráng bề mặt bồn cầu để tránh vi khuẩn bám vào gây ố vàng. Sau một thời gian nước này sẽ trở lại thành nước bình thường. Nên đảm bảo an toàn và sạch sẽ môi trường.
- Vòi rửa massage đa chức năng, rửa sạch, êm ái thích hợp cho mọi thành viên trong gia đình, đặc biệt là chị em phụ nữ
- Tự vệ sinh vòi rửa trước và sau khi sử dụng giúp tránh vi khuẩn tích tụ và bám vào cơ thể khi sử dụng vòi lần sau. Đảm bảo an toàn tuyệt đối cho người sử dụng
- Sấy khô, khử mùi, sưởi ấm nắp ngồi. Bạn sẽ cảm thấy thật dễ chịu bởi từ nay bề mặt nắp thật ấm áp, không còn lạnh bất ngờ như trước kia nữa. Đặc biệt vào những ngày trời đông.
Thông số kĩ thuật của Bồn Cầu 1 Khối Nắp Rửa Điện Tử TOTO MS823CDRW12#XW
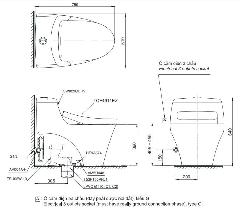
- Mã sản phẩm: MS823CDRW12#XW
- Kích thước: 750D x 510W x 640H mm
- Màu sắc: Trắng
- Hệ thống xả: Tornado
- Lượng nước xả: 4.5/3L
- Thiết kế: Thân dài, thân kín, giấu dây
- Tâm xả: 305 mm
- Áp lực nước: 0.05 ~ 0.75 MPa
- Nguồn điện: 220V, 50/60Hz
- Thân cầu: CW823CDRV – Xuất xứ: Inđônêxia
- Nắp rửa điện tử: TCF4911EZ – Xuất xứ: Malaysia
- Bích nối sàn T53P100VR – Xuất xứ: Việt Nam
- Lưu ý: Bao gồm bích nối sàn, van dừng
Bản vẽ kĩ thuật của Bồn Cầu 1 Khối Nắp Rửa Điện Tử TOTO MS823CDRW12#XW
Bản vẽ Bồn cầu TOTO MS823CDRW12





Đánh giá
Chưa có đánh giá nào.