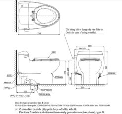
Bồn Cầu 1 Khối Nắp Rửa Điện Tử TOTO MS688W14#XW

Thương hiệu: TOTO | Xuất xứ: Việt Nam - Malaysia | Bảo hành: 2 năm

Chat Zalo