Bàn cầu treo tường CW822REA/TCF23460AAA/WH172AT/TCA465/MB170P#SS kèm nắp rửa điện tử WASHLET C2
Thông tin bàn cầu treo tường CW822REA/TCF23460AAA/WH172AT/TCA465/MB170P#SS
Thông số kỹ thuật
- Kích thước: 595D x 380W x 335H mm
- Màu sắc: Trắng
- Hệ thống xả: Tornado
- Lượng nước xả: 4.5/3L
- Thiết kế: Thân dài, thân kín, giấu dây
- Tâm xả: 220 mm
- Áp lực nước: 0.05 ~ 0.75 MPa
- Nguồn điện: 220V, 50/60Hz
- Két nước: WH172AT
- Mặt nạ xả nhấn: MB170P#SS
- Nắp rửa điện tử WASHLET: TCF23460AAA
- Lưu ý: Không được kết hợp với van xả trực tiếp
Tính năng
- Men sứ chống dính, chống bám bẩn CEFIONTECT
- Hệ thống xả xoáy Tornado siêu mạnh, siêu êm, tiết kiệm nước
- Công nghệ nước điện phân khử khuẩn Ewater+ (Chế độ vệ sinh vòi rửa)
- Vòi rửa massage đa chức năng, rửa sạch, êm ái
- Tự vệ sinh vòi rửa trước và sau khi sử dụng
- Sấy khô, khử mùi, sưởi ấm bệ ngồi
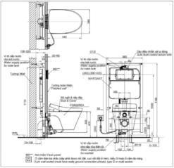
Bản vẽ kỹ thuật bàn cầu treo tường CW822REA/TCF23460AAA/WH172AT/TCA465/MB170P#SS
Bản vẽ kỹ thuật bàn cầu treo tường CW822REA/TCF23460AAA


Đánh giá
Chưa có đánh giá nào.