Van điều chỉnh nhiệt độ kèm phụ kiện âm tường TBV01406B/TBN01001B được áp dụng công nghệ ổn định nhiệt Safety Thermo sử dụng lõi lò xo SMA
Thông tin kỹ thuật của van điều chỉnh nhiệt độ TBV01406B/TBN01001B
- Chất liệu: Đồng mạ Niken-Crom
- Áp lực nước: 0.05 ~ 1.0 MPa
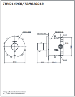
Bản vẽ kỹ thuật van điều chỉnh nhiệt độ TBV01406B/TBN01001B
Bản vẽ kỹ thuật TBV01406B/TBN01001B


Đánh giá
Chưa có đánh giá nào.