Bàn cầu treo tường CW822REA/TCF4911EZ/WH172AAT/TCA464/MB170P#SS kèm nắp rửa điện tử WASHLET dòng S7 có tính năng xả tự động
Thông tin về bàn cầu treo tường CW822REA/TCF4911EZ/WH172AAT/TCA464/MB170P#SS
Thông số kỹ thuật
- Kích thước: 540D x 380W x 330H mm
- Màu sắc: Trắng
- Hệ thống xả: Tornado
- Lượng nước xả: 4.5/3L
- Thiết kế: Thân dài, thân kín
- Tâm xả: 220 mm
- Áp lực nước: 0.05 ~ 0.75 MPa
- Nguồn điện: 220V, 50/60Hz
- Lưu ý: Không được kết hợp với van xả trực tiếp
Tính năng
- Thiết kế giấu dây hiện đại, tăng tính thẩm mỹ
- Có tính năng xả tự động
- Men sứ chống dính, chống bám bẩn CEFIONTECT
- Hệ thống xả xoáy Tornado siêu mạnh, siêu êm, tiết kiệm nước
- Nắp đóng/ mở tự động
- Công nghệ nước điện phân khử khuẩn Ewater+ (Phun tráng lòng bàn cầu và vệ sinh vòi rửa)
- Vòi rửa massage đa chức năng, rửa sạch, êm ái
- Chế độ đưa bọt khí vào giọt nước
- Tự vệ sinh vòi rửa trước và sau khi sử dụng
- Sấy khô, khử mùi, sưởi ấm bệ ngồi
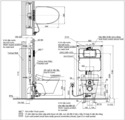
Bản vẽ kỹ thuật bàn cầu treo tường CW822REA/TCF4911EZ/WH172AAT/TCA464/MB170P#SS
Bản vẽ kỹ thuật CW822REA/TCF4911EZ/WH172AAT/TCA464/MB170P#SS



Đánh giá
Chưa có đánh giá nào.